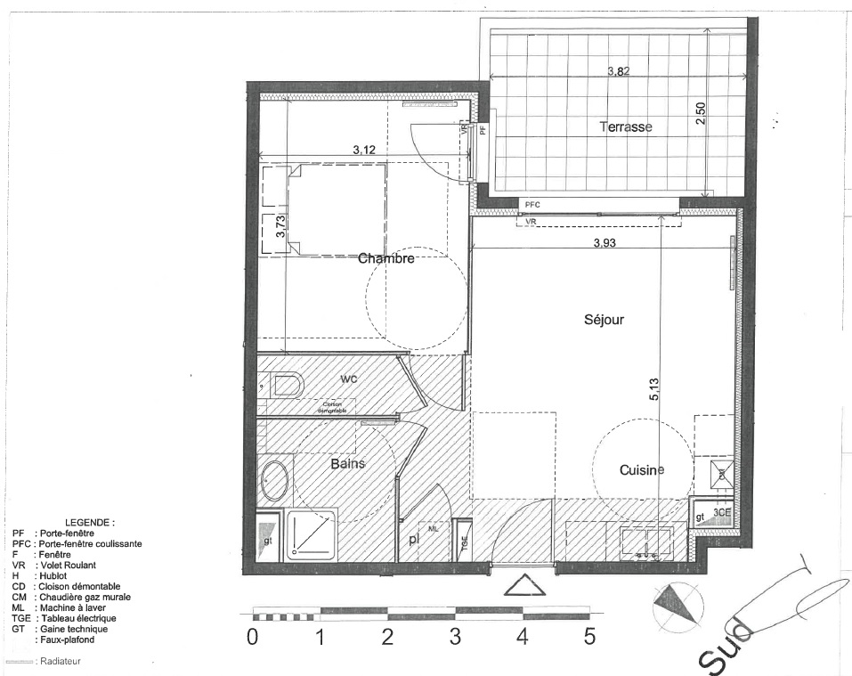
A VENDRE EN EXCLUSIVITE – FREJUS- Port Fréjus II : Situé à environ 15 minutes à pieds de la plage des Sablettes, au sein d’une résidence récente de bon standing, parfaitement entretenue et sécurisée, au bord du canal de Port-Fréjus II et au calme, cet appartement 2 pièces d’environ 40 m² habitables, au rez-de-chaussée avec ascenseur pour accéder au sous-sol (box fermé et cave), est composé : d’une entrée-séjour / cuisine donnant sur une terrasse exposée Est ( idéale pour les petits déjeunés ensoleillés), une chambre, une salle d’eau avec douche et un WC indépendants. Pas de procédure en cours.
Visite virtuelle disponible.
Copropriété de 251 lots – dont 73 lots habitation. (Pas de procédure en cours).
Charges annuelles : 950 euros.
Ascenseur
Cave
Climatisation
Digicode
Garage
Parking
Terrasse
Logement très performant
Logement extrêmement consommateur d’énergie
Peu d’émission de CO2
Emission de CO2 très importante
Contacter l’agence pour le visiter !
Les Agences immobilières SWEET HOME sont vos partenaires pour réaliser votre projet immobilier sur le secteur de Garéoult, Rocbaron, Forcalqueiret, Néoules, La Roquebrussanne…
Venez découvrir nos nombreuses maisons, villas, demeures de prestiges et
appartements à la vente sur Gareoult et Rocbaron dans le centre var
A VENDRE EN EXCLUSIVITE avec vos agences SWEET HOME : HYERES, quartier de La Gare, dans une résidence sécurisée et […]
EXCLUSIVITE ROCBARON: Mobil home d’environ 40 m2 (2021), en très bon état, composé de 3 chambres sur une parcelle d’environ […]
A vendre, en exclusivité avec vos agences SWEET HOME, situé au centre du village de GAREOULT, dans un immeuble de […]
A VENDRE GAREOULT appartement T3 loué 800 euros / mois locataire en place très sérieux jusqu’au 22/08/2022. L’appartement est en […]
Au 2ème et dernier étage, appartement en bon état, traversant avec double exposition, d’environ 80 m² de type 4 avec […]
A vendre sur GAREOULT, centre village, uniquement avec vos agences Sweet Home. Cet appartement se compose d’une entrée, d’un espace […]
Parrainez de futurs vendeurs et augmentez vos revenus en les présentant
à nos agences sur garéoult et rocbaron dans le centre var.
2548
Biens vendus
250
Exclusivités
10
Agents prêts à vous
accompagner
1853
Coups de coeur
de clients
